Een curieus bericht bij de collega's van RTV Rijnmond. De gemeente Rotterdam is op zoek naar de erfgenamen van een Rotterdamse die werd geboren in 1852. Zonder haar lapje grond ligt de herontwikkeling van de Tweebosbuurt op Rotterdam Zuid deels stil.
Rijnmond bericht over een oproep die de gemeente Rotterdam onlangs deed in lokale kranten aan de erfgenamen van Wilhelmina Fokkolina Meppelder om zich melden. De vrouw in kwestie werd geboren op 10 september 1852 (overlijdensdatum onbekend) en woonde op het laatst van haar leven aan de Hilledijk 155 te Rotterdam.
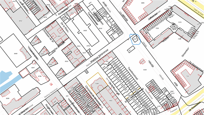
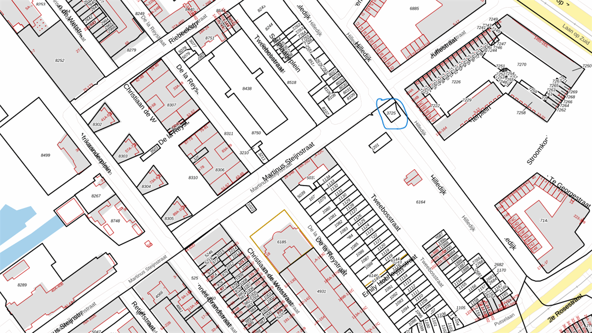
De gemeente Rotterdam is op en rondom deze locatie druk bezig met de herontwikkeling van de Tweebosbuurt. Na een lange juridische strijd met huurder wordt een flink deel van de sterk verouderde corporatiewoningen inmiddels gesloopt en vervangen voor nieuwbouw.
Vrijwel alle benodigde grond voor de herontwikkeling werd vanaf 2019 onteigend. Op het perceel Charlois G 3725 na, een lapje grond op een groenstrook aan de Hilledijk 134 na. Daarvan heeft de gemeente nog niet de rechtmatige eigenaar gevonden. Het kadaster leert dat om lapje grond van 106 m2 gaat. In de oproep in lokale kranten vermeldt de gemeente ook 12 familieleden van de eigenares, van wie geboorte- en/of overlijdensdata en laatste woonadres onbekend zijn.
Als de erfgenaam wordt gevonden hoeft deze zich niet rijk te rekenen. Marktconform doet een soortgelijk stukje grond in de regio tussen € 300 - € 700 maar de gemeente Rotterdam laat aan Rijnmond weten dat die schatting "veel te hoog is". De opbrengst moet bovendien verdeel worden tussen alle rechthebbenden.
