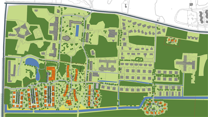
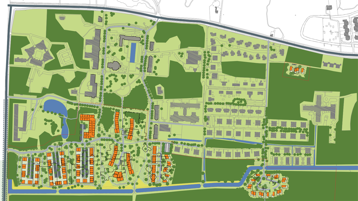
De Haagse gemeenteraad heeft groen licht gegeven voor de bouw van 262 woningen in Park Bloemendaal in Loosduinen.
De gemeente had een zogeheten Plan Uitvoeringskader opgesteld. Dat voorziet in de bouw van maximaal 262 woningen door zorginstelling Parnassia. Er komt plek voor woningen omdat Parnassia zelf minder ruimte nodig heeft door veranderingen in de zorg. Er moeten 80 sociale huurwoningen komen, naast 190 extra bomen en 10.000 m2 meer groen. Robert van Asten, wethouder Stedelijke Ontwikkeling, denkt met deze plannen wonen en zorg op het terrein samen te brengen en voor verbinding te zorgen met de aanleg van fietspaden tussen Vroondaal en voorzieningen, als een school, supermarkt en apotheek.
Motie verworpen
De Partij voor de Dieren had een motie ingediend om het gebied als landgoed te behouden, maar die haalde het niet. Het gebied grenst aan het Natura 2000-terrein Solleveld. Raadslid Jan Willem van den Bos vindt het plan daarom 'onrealistisch en juridisch onuitvoerbaar' vanwege de stikstofregels. Er zou een nieuw onderzoek moeten worden gedaan.
